60 second response
30 minutes reply
24-hour customization
In the process of ultrafine powder preparation, the product should be graded, on the one hand, the product particle size is controlled in the required distribution range, on the other hand, the product with the particle size has met the requirements in the mixed material is separated in time, so that the coarse particle is returned to be crushed again, in order to improve the crushing efficiency and reduce energy consumption.
Suitable for ultra-fine powder,It has the effect of dispersing and deaggregating false aggregation.
2μm-150μm ultrafine grinding/grading, the finished particle size is adjustable and controllable
PLC automatic control system, easy to operate
Fully closed negative pressure operation, no dust spill

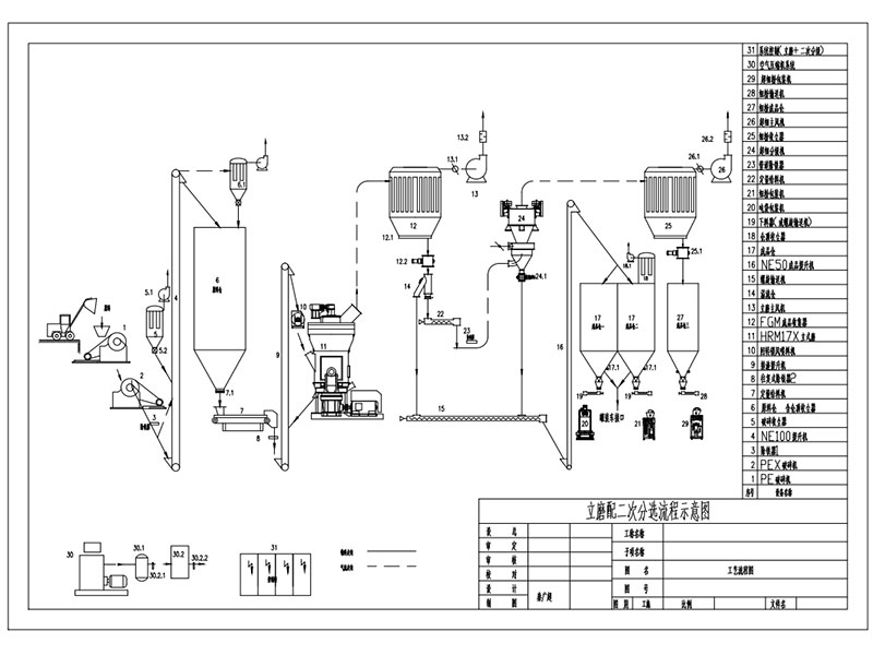
Flow chart of vertical mill secondary ultrafine classification

Flow chart of secondary ultrafine classification in ball milling
Visit the site for freeCan consult online free appointment visit site or design configuration scheme
Online contactMore models can also contact us to support customization
All you need is a phone call and we'll do the rest
Consult nowThe sales team will talk to you in detail and tell us your needs
Provide demandProfessional engineers can provide reasonable solutions according to your needs
Acquisition schemeWe'll do it in a reasonable amount of time
Scheduled equipmentProfessional installation team on-site installation and commissioning to stable production
Technical supportIf you have any problems later, you can contact the after-sales engineer
Contact us